
93㎡現代日式 | 在留白中體會豐盈,于平淡中看懂幸福

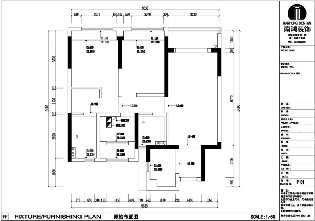
項目信息 / 地址:臻藍府 城市:中國 杭州 戶型:三室兩廳 面積:93㎡ 風格:現代日式 設計施工:浙江南鴻裝飾 現代日式是一種小眾但又頗受許多年輕人喜愛的風格,它在線面處理上比較單純直接,設計手法、色彩搭配又是克制內斂,整個空間具有簡潔明快的特點,強化功能的同時也著力表現了一種純粹美好的生活哲學。 本案的業主是一對熱愛生活的年輕夫婦,他們希望自己的家是清新素雅又比較溫馨的。全屋以灰、白和原木色為主打造,地面鋪柔光地磚,墻頂皆是留白,這樣一個舒適愜意的清新小世界,把生活的所有儀式感皆收藏其中。 · 戶型設計分析 設計說明: 餐廳利用柜子的厚度,做了雙門大冰箱的內嵌,過道墻面做了圓弧處理;為了讓床避開主衛門,臥室門往墻里借了十幾公分,衣柜做長來擋住主衛門。 玄關 Hallway 進門處將玄關機能嵌入墻面,底部與中部留空的儲物柜、換鞋凳,讓每一個出門和歸家的時刻都有了必要的儀式感。 客廳 Living Room 全屋維持了簡單、不會形成任何視覺負擔的色彩搭配,白色打底,原木與低飽和度的軟裝點綴,一個大方整潔的空間就此誕生。通體的留白為往后的生活留下無盡想象,也是在等待著居者慢慢填補出屬于他們自己的幸福痕跡~ 大白墻背景方便投影幕布的使用。頂面做了軌道燈設計,讓夜幕降臨時分的小屋更有氛圍感。過道處嵌入頂天立地的柜子,既是利用閑散空間增加儲物,也讓內外的視覺保持了統一完整。 在簡化所有不必要的裝飾之后,空間就變得仿佛會呼吸一樣,寥寥幾件單品家具,足以呈現樸拙、自在的美。 餐廳 Dining Room 簡單的邊吊讓屋子層高不受壓抑,空間感更顯開闊。而客餐一體的模式,也讓光線能均勻地散布到室內各處,成為居室最好的氛圍助推劑。 從客餐到玄關的視線也是一樣的流暢,模糊處理的空間界限加強了不同功能區之間的交互。餐廳一側雙門大冰箱嵌入過道,墻面與吊頂均有一個弧形處理,空間在美觀的基礎上,局部延展性也很強。 原木的餐桌椅造型簡約,溫暖治愈的氣息,感覺分分鐘就穿進日劇生活了哇~ 過道 Corridor 通往內臥和衛生間的過道走廊,轉角的弧面主要是為了讓空間結構更加柔和,視覺借此延伸,公私區域間便擁有了順暢的連續性。盡頭處放一幅落地的簡筆畫,輕巧呼應整體的調性,簡約中自有意趣所在。 圓弧形結構為空間增添生動的氣息,打破單調。 廚房 Kitchen 原木與白搭建的經典日式廚房,U形操作臺拿捏最佳下廚動線,烹飪起來非常高效。 臥室 Bedroom 臥室的布置保持極簡,良好采光讓室內舒適清透。床頭柜選擇棕色的小推車式樣,輕巧靈便,不占空間。 臥室衣柜做長剛好擋住了床對主衛門的位置,衣帽間的存在也大大豐富了臥室的儲物功能。 衛生間 Bathroom 過道干區用飾有綠葉的花磚鋪出自然清新的觀感,營造一個潔凈的洗漱環境。 主衛也簡單地做了干濕分離,深色豎紋的臺盆柜增強空間的立體感。



















上一篇:餐邊柜:聽我說謝謝你,因為有你~
免費
免費申請戶型規劃
專屬設計師免費1對1全程服務
已經有3768人申請
24小時免費咨詢電話
400-8800-618
你家預算
108080元