
南鴻裝飾五月全體設計師會議順利召開
今夏比往年來得更早,五月的悶熱就仿佛七月一般,高溫來襲的日子小伙伴們都要注意好好避暑哦~
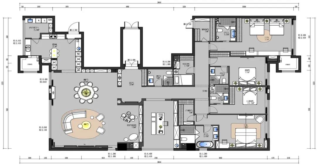
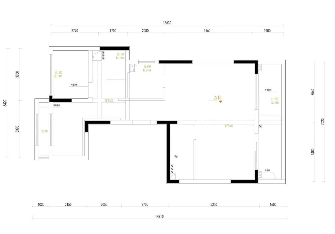
就在昨日,南鴻裝飾五月全體設計師大會于瑞萊克斯大酒店順利召開了,一起來看看本次會議都有哪些精彩內容吧! 本次MVP作品,是由咱們設計經驗非常豐富的王建榮老師帶來的一套現代法式風格案例。 現代法式追求簡約、清新、浪漫等多種情懷,相比起傳統法式,現代法式家具擯棄所有的繁重與冗余,給人的整體感覺是更為舒適,也更為年輕。 走道和玄關,以金屬色和線條營造奢華氛圍,各種質感石材、鏡面不銹鋼等材質靈活貫穿其中,結合立柱、雕刻、地面拼花等元素,呈現富麗華貴的空間感受。 客餐廳打通,空間顯得更為開敞。沙發背景墻采用鏤空的金屬隔斷,打破了沉悶氣氛。 廚房和書房,沒有繁雜的裝飾,單為滿足各自的功能而設計。U型櫥柜合理安排了下廚動線,避免多余步驟。書房用色較深,適合沉心靜氣。 主臥,以灰度較高的莫蘭迪為主色調,配合簡單的布局與明亮的光線,從容地把一切冗雜擋在外面。 客戶需求:私密性茶室空間;家有三寶,需要比較大的兒童玩樂區;餐廳需要大圓桌,滿足12口人的就餐需求;每個臥室配備衛生間等。 本案的業主是一位氣質高雅的單身女教師,美麗文靜,在前期溝通上與設計師可謂一拍即合,整體施工流程也十分順暢。 ○缺陷分析: 過道太長,進門需要做出玄關。 雙陽臺在空間上有些浪費。 主臥需要滿足儲物,面積緊張。 ●對應調整: 進門做玄關組合柜。 客廳陽臺做地臺,雙陽臺打通并做弧形門洞。 主臥內原衛生間改成了衣帽間。 實景欣賞▼ 弧線背景墻,陽臺地臺,與開放式廚房 雙陽臺打通,弧形門洞 本案為110方簡約美宅,整體設計以沉穩時尚的黑白灰質感為出發點,擯棄一切復雜的外在形式,回歸到生活的本質。 設計理念:以客戶的喜好為主心,重點在空間儲物,頂部造型,電視背景隱形門及儲物間隱形門上打造不同的空間感,使整體感覺更加的時尚美觀。 設計六部韋素玉 / 天安假日 客戶需求:二手房,裝修預算屬于剛需類型,對環保和施工工藝有著高要求。因為孩子還小,所以客餐廳需要開闊,兒童玩樂區寬敞,儲物空間充足。 蕭山分部程寅 / 永興首府 本案為128方戶型結構,以木色結合現代感的黑白灰,簡約時尚而溫馨淡雅,目前處于半完工狀態。 02 榮譽頒獎






























免費
免費申請戶型規劃
專屬設計師免費1對1全程服務
已經有3766人申請
24小時免費咨詢電話
400-8800-618
你家預算
108080元