
178㎡意式 | 奢石、光影與高級感的同步蘇醒!
項目信息
PROJECT INFORMATION
地址/ 丹楓四季
城市/ 中國 杭州
戶型/ 四室兩廳
面積/ 178㎡
風格/ 現代意式
設計施工/ 浙江南鴻裝飾
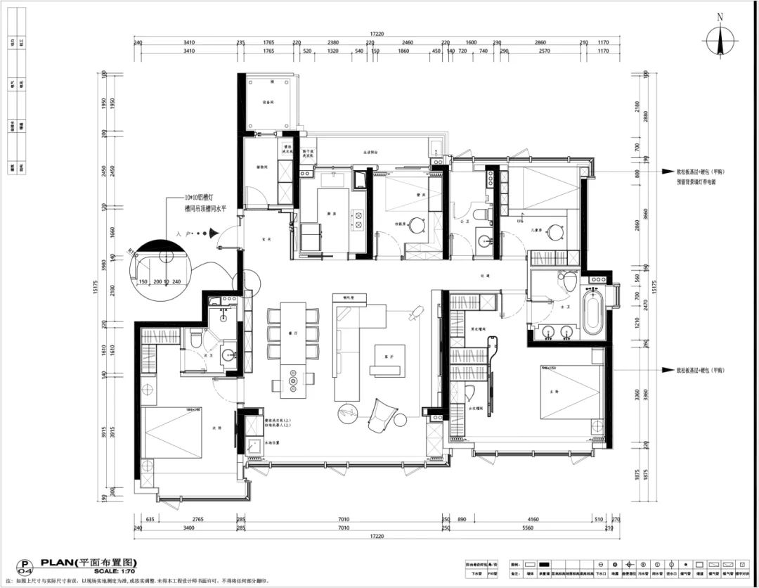
作品前言 ABOUT HOME 本案為意式風格的一套精裝房改造項目,業主需求更具個性化的裝飾,以及穩重大氣的居住氛圍。 居室主體以米灰中性色與大面積的褐色木質紋理建構,融入高級感奢石,與木材交織出更為豐富的層次,現代潮流與實用主義相融合,造就時尚、雅致、利落的意式空間。 戶型方案 LAYOUT DESIGN 實景呈現 CASE APPRECIATION No.1 玄關 高雅的背景墻設計,讓玄關不再只是脫放鞋物衣物的緩沖區,而是悉心布畫的一隅美麗端景,為歸家的主人獻上視覺的享受。 疊級、異材穿插、懸挑、深淺色組合......優雅的設計藝術精心雕琢方寸之地,色彩與形態共舞,帶來豐富多元又生機勃勃的感官體驗,光影如金箔般流轉,衍生出美輪美奐的入戶儀式感。 No.2 客廳 大面積的棕木色調帶著天然寧謐的情緒,為空間勾勒出低調、樸實的外形輪廓。客餐一體格局,在提升互動感的同時,極大增強了整體的采光與通風,簡明清晰的動線規劃,以通透的格調,敞開舒朗自在的家景。 客廳頂面使用一盞浮空水滴燈,與輕奢感的電視背景形成呼應,背景墻搭配了奢石與木作,并嵌入電視機與展示層架,形構一幅冷暖平衡、沉穩大方的主視覺圖。 No.3 餐廳 開放式餐廳選配島臺+餐桌組合,并借由奢石材質,為不同區塊串起隱形的連接。又定制多功能餐邊柜,進退、穿插的造型塑造層次豐富的空間感,除了為餐區提供必要的功能補充,也令居室更加的精致有格調。 No.4 廚房 廚房做動線流暢又省空間的U型操作臺,櫥柜暗拉手,空間通體與外部維持著一樣的整潔有序。 No.5 臥室 主臥背景墻使用簡潔硬包材質組合木飾面,在提升層次感的同時,也賦予了空間極為安穩平和的觀照。床尾則借帶圓弧的隔斷,為男女主人巧妙地分隔開各自的衣帽間,以居住者的實際需求為導向,呈現真正人性化的儲物設計邏輯。 次臥的空間略為局促,我們便利用榻榻米的結構,高效收攏休憩、學習和收納的功能,實現空間的最大化利用。墻面半體留白,留足了呼吸感。
















免費
免費申請戶型規劃
專屬設計師免費1對1全程服務
已經有3766人申請
24小時免費咨詢電話
400-8800-618
你家預算
108080元