
348㎡大平層 | 無彩系空間+潮流奢石,半是極簡,半是奢華!
項目信息
PROJECT INFORMATION
地址/ 嘉潤公館
城市/ 中國 杭州
戶型/ 大平層
面積/ 348㎡
風格/ 現代極簡
設計施工/ 浙江南鴻裝飾
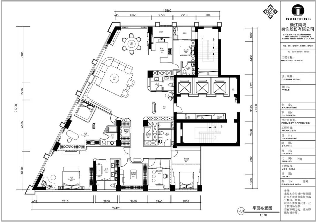
作品前言 ABOUT HOME 本案秉承極簡風那理性和克制的思路,簡潔的黑白色結合,利用有序的塊面、明晰的線條以及自在的留白,讓空間變得干凈利落,將居住引向適契心靈的舒適狀態。 居室將無彩系配色與大理石裝飾相結合,純粹的黑色交織上流動的銀白紋理,讓人瞬間便聯想到波瀾壯闊的海洋,空間自然地浮顯出低調而優雅的魅力。 戶型方案 LAYOUT DESIGN 實景呈現 CASE APPRECIATION No.1 玄關 接近正方形比例的開敞門廳區,利用柜體結構做了界線分割和視線遮擋,保護室內隱私。圓弧的塊面引導視線流暢入室內,利落黑白色平衡配比,釋放出無邊的松弛與愜意。 拿破侖黑大理石作為入戶直對的端景面呈現,強烈對比碰撞的美麗花紋,構塑出一眼難忘的視覺聚焦點,繼而以深色地面向著室內鋪展開肆意灑脫的紋理,如海浪般層層疊疊,在光下演繹著波瀾起伏的樂章。 No.2 客廳 大平層寬裕的尺幅為客餐廳留足了活動空間,開放式布局搭建起自由流通的起居動線,筑就一處多元化的休閑、社交場所。 客廳的基調為灰白色,直朗線條展現理性氣質,寬厚白色沙發溫潤樸實,佐配深色大理石,柔軟與剛直,不同質材之間的碰撞與對話,為空間增添了獨特的意趣。墻面用燈帶漫開勻白光線,也令電視背景更具立體感。 No.3 餐廳 轉入餐廳區,選配深色石材圓桌與法式創意吊燈,墻體因凹凸的結構與奢石材質的穿插而有了更多的變化感以及精致的都市感。 擁有梯形切面的餐邊柜成為餐區的一大亮點,實用水吧臺方便陳放杯盞餐具以及使用各類的小家電,光、色、形多維度的和諧組合,彰顯著這個家的情調與質感。 No.4 廚房 廚區配備移門隔絕烹炒時的油煙,純白色櫥柜搭配隱形拉手,將極致簡潔的調性延續,頂面以燈條分割出方型輪廓,提升立體度與美觀感。 No.5 臥室 主臥通過大面白色的鋪展,給人以安穩、平靜的感受。簡約黑白色的對比制造層次,體塊的疊構、線條的流動與拉伸,使身處居室之中的每一個轉身,都有了恰到好處的舒朗關照。 次臥利用頂面的藝術造型配合冷色光源,營造出輕盈和靈動之感,睡臥區設計深色地臺與小半面尺幅的弧形裝飾墻,讓這片私屬空間流轉出愈加深沉而扎實的表現力。床尾騰出空間作為書桌辦公區,將功能進一步豐滿。 No.6 衣帽間 主臥配備有獨立的衣帽間,分區收納設計一目了然、井井有條,中置島臺并依墻從儲物開放區延伸出懸浮式梳妝臺,呈現一方簡約而飽富現代感的穿搭、梳妝空間。

















免費
免費申請戶型規劃
專屬設計師免費1對1全程服務
已經有3766人申請
24小時免費咨詢電話
400-8800-618
你家預算
108080元