
135㎡中古 | 木葉動秋聲
一定要愛著點什么,
恰似草木對光陰的鐘情。
——汪曾祺
過目不忘的生活場景,簡單卻有質感的居住體驗,具備時間沉積厚度的懷舊中古風總能一秒戳中人心。
我們希望這個家是足夠隨性、有溫度的,同時為了契合兩位年輕業主的喜好,在空間中也加入許多有設計感的造型,希望能帶給他們一種復古又時尚的美好居家體驗。
全屋使用經典美拉德配色,沉穩質樸色調營造暖融而松弛的氛圍,帶著真切的從容,為空間注入了強大的自由生長力。


米白色的基底傳遞寧靜與平和,胡桃木與深色家具則恰到好處地平衡了層次、加強了高級感,空間自成恬靜與悠閑之氛圍。米色與棕色交織,鋪陳出時光營造的優雅氣息,將愛與陪伴編織成景,為家建構起堅固恒久的守候。

°客廳

本案橫廳的格局,做了客餐廳一體式結合,并以電視矮墻作為輕隔斷。空間鋪暖白色柔和感基底,滿載自然氣息的美拉德配色填補畫面,帶來閑適、溫暖、安然的居家感受。

過道望向餐區。為了不破壞整體畫面的和諧,衛浴干區與公區的隔斷選擇了一面長窄屏風的形式呈現,更添神秘與古韻。


電視矮墻結合定制柜與斯卡帕疊級造型,增強儲物的同時提升高級感,不作滿型式令區域通透感依舊,視野和光線自在流通。頂面融入暖色燈帶光源,埡口處的弧形結構,也為空間層次的變化帶來了更加柔和的過渡。
°陽臺

一杯咖啡,一本書,一處安靜的角落,一個悠閑的午后......擅長生活藝術之人,大略都深諳悅己之道,非向外尋求認同,而是于內里滋養心神。
陽臺擴進室內,抬升做人字拼地臺,擺放一把單椅或舒適懶人沙發,時光仿佛也慢下了步子,讓心緒變得寧靜、平和。
°餐廳

餐廳使用餐椅與長凳的組合,搭配造型感木桌與中古風吊燈,縈繞在空間中的皆是閑適之味。與書房間的壓花玻璃隔斷,成為餐區一面文藝氣質背景,光線透過玻璃折射而出朦朧變幻,視線隨之流動,心緒便也自在漂浮。


靜謐與光線在室內不期而遇,大面積木元素鋪展,加持層次疊加、弧線穿插、虛實相襯的藝術效果,豐盈著美學意蘊。細細打磨家的各處細節,將生活編織而成一首美妙詩篇,在尋常忙碌的間隙,獻上令人放松和愉悅的韻律。
°臥室


主臥延續米白和胡桃木色的搭配,無主燈的設計顯大又通透,床頭設計骨骼線的半墻飾面,細膩肌理呈現中古風的優雅魅力。吊頂的弧面處理營造一方更具親和力與安全感的小天地,飄窗休閑區包裹羊羔絨面,為身心提供全面的關照與舒適。

主臥包進衣帽間,豐富柜體承擔日常主要收納,再沿飄窗拓出梳妝臺,一體化流暢結構將空間打磨得細致考究。
°衛生間


主衛包覆淺色啞光磚擴大空間感,臺盆柜+鏡柜解決大部分收納,浴缸區的地面則做了約十公分的抬升,為沐浴營造儀式感。立面以壁龕為形,輕巧擴充儲物容量,幫助維持衛浴間的干凈整潔。
—
·項目信息·
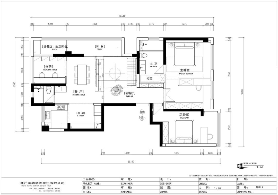
項目名稱:水悅花園
設計風格:現代中古
項目類型:三室兩廳
項目地點:中國·杭州
項目面積:135㎡
項目服務:設計·施工·硬裝·軟裝 全案設計
設計單位:浙江南鴻裝飾
施工單位:浙江南鴻裝飾
免費
免費申請戶型規劃
專屬設計師免費1對1全程服務
已經有3766人申請
24小時免費咨詢電話
400-8800-618
你家預算
108080元